
Ekran office
Public / 2019-2020
TYPE: Public
STATUS: Complete
YEAR: 2019-2020
SIZE: 50 sqm - 100 sqm
TEAM: Bogdan Kupriienko, Bogdan Pylys, Daryna Chopyk, Nadya Lylo, Natalia Melko, Pavlo Lyakhovych
PHOTOS: ⓒkorsunphoto
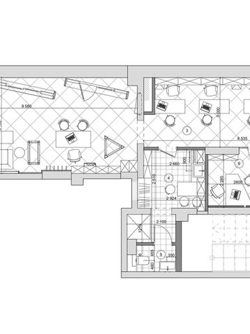
Реалізований салон для компанії “Екран-Вікносвіт”. Вони займаються віконно-дерев'яними конструкціями з металопластику, дерев'яного брусу та алюмінію. Мають велике, власне виробництво у м. Стрий. Відділ продажів вже багато років працює у Львові, а з часом виникла потреба в новому приміщенні. Основною ідеєю було створити місце, в якому будь-якій людині з вулиці буде зрозуміло що виготовляє компанія. Ми максимально використали їхні матеріали, продукцію та брендові кольори. Клієнти власними силами виготовили всі меблі та декори за нашим дизайном. Також, для створення певних деталей, передбачили повторне використання відходів від виробництва. В першому залі представлені розсувні віконні системи, які ми легко розвернули для сприйняття з вулиці та від входу. М‘яка зона при вході — для відвідувачів. Шпон на стінах, як контраст до фірмових зелених стін навпроти. Великий логотип з підсвіткою — також для сприйняття з вулиці, розташований на мереживі з металу. Далі в кінці залу прохід в офіс, який складається з двох частин: робочої зони та кабінету з переговорною. За чорними “прихованими” дверима розташовані кухня і санвузол. За скляною перегородкою — кабінет, що має теплі відтінки та декор з дубу — з якого і виготовляють віконні профіля. Всі інженерні мережі на стелі пофарбували в чорний для візуального збільшення висоти. Ми задоволені співпрацею з клієнтом, результатом та реалізацією. А ви можете побачити втілення нашого проекту на фото, або за адресою м.Львів вулиця Кульпарківська 64а

















